Tetris
Promoting a “Slow” Mindset in the City
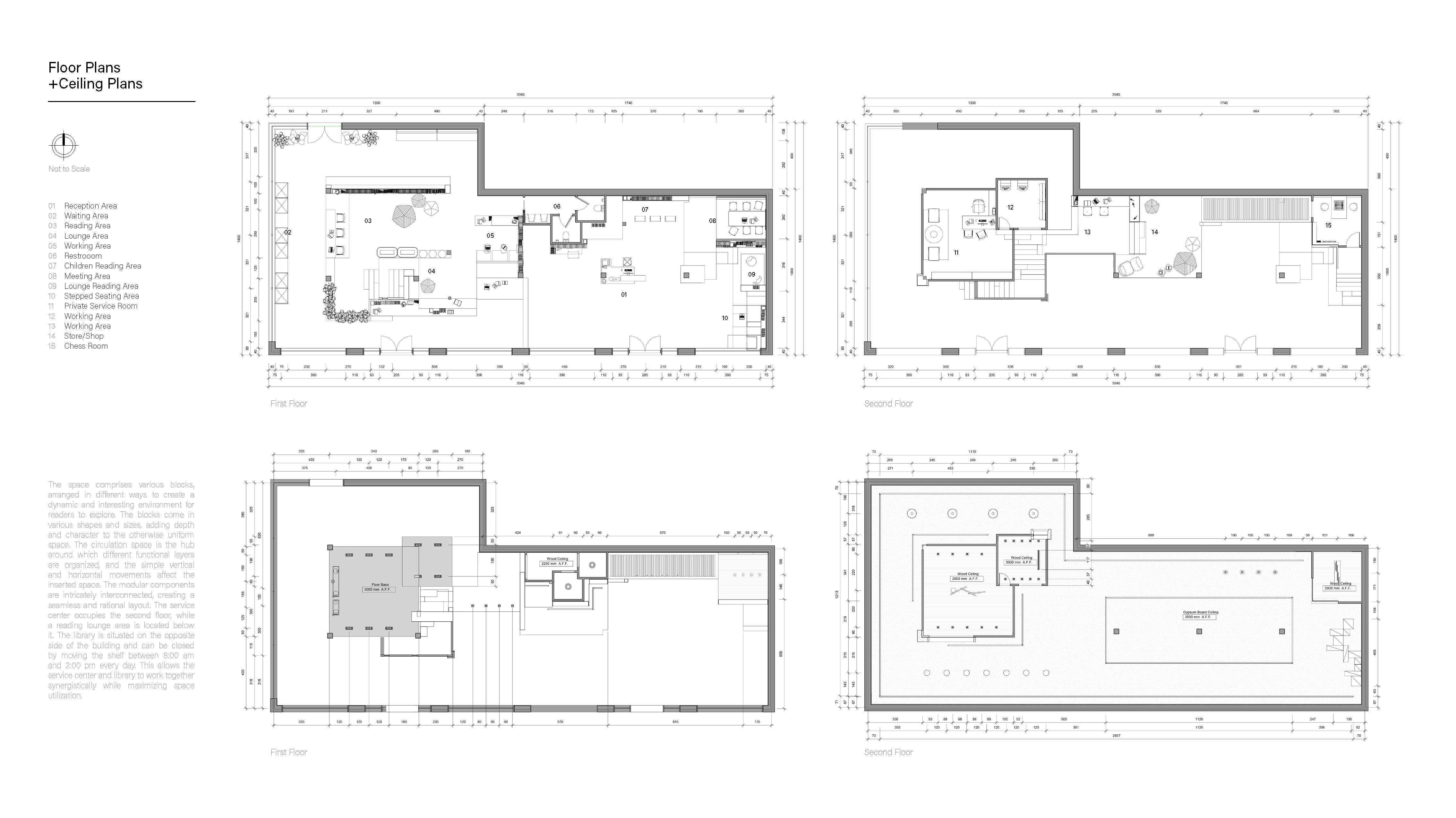
Neighborhood Library and Service Center

[ Project Year ]
[ Project Type ]
[ Working Team ]
[ Key Words ]
[ Location ]
[ Site Area ]
[ Project Type ]
[ Working Team ]
[ Key Words ]
[ Location ]
[ Site Area ]
2020
Interior Design
Individual Work
Transformable Space, Split-level
Shenzhen, Guangdong Prov, China
350 m²
Interior Design
Individual Work
Transformable Space, Split-level
Shenzhen, Guangdong Prov, China
350 m²
This project aims to transform an old library and service center by updating the building and its facilities with Tetris-inspired modular furniture that is transformable and mobile, integrating the library into the service center to maximize the use of space and accommodate different business hours, and creating a relaxing and immersive reading space for local residents and their children to escape the bustle of daily life in the city.
[Swipe to see details]









